Moja Młynowa

Piętro 2

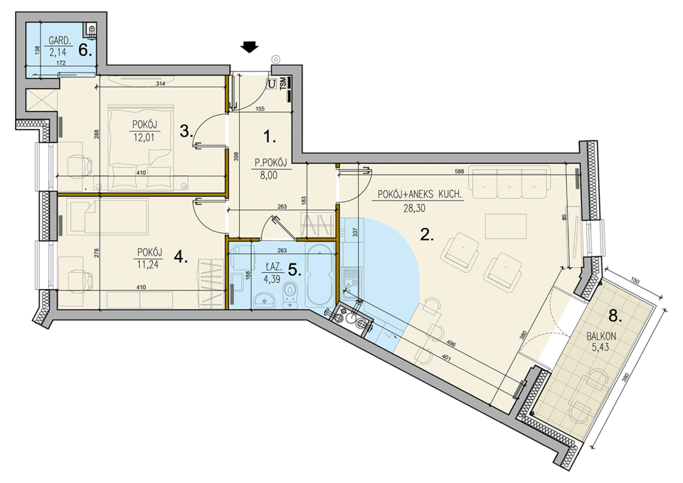
Mieszkanie 93

Moja Młynowa

Przedsprzedaż

Rezerwacja

Piętro Piętro 2
Metraż 66.08 m2
Liczba Pokoi 3
Aneks/Kuchnia Aneks kuchenny
Wystawa okienna
Balkon 5.43 m2

Mieszkanie 93 Wyślij zapytanie

FORMULARZ KONTAKTOWY

Wyrażona zgoda jest dobrowolna ale niezbędna, żeby zarejestrować Pana/Panią w bazie kontaktowej Administratora Danych. Mają Państwo prawo żądać wstrzymania przetwarzania lub usunięcia danych, które zebraliśmy za Państwa zgodą. Równocześnie mają Państwo prawo do wycofania zgody poprzez przesłanie odpowiedniego oświadczenia na adres: bialystok@kalternieruchomosci.pl. Administratorem danych jest Kalter Nieruchomości Sp. z o.o.. Wycofanie zgody nie wpływa na zgodność z prawem przetwarzania danych na podstawie zgody przed jej wycofaniem

Sprawdź Podobne mieszkania