OGRODY ANDERSENA
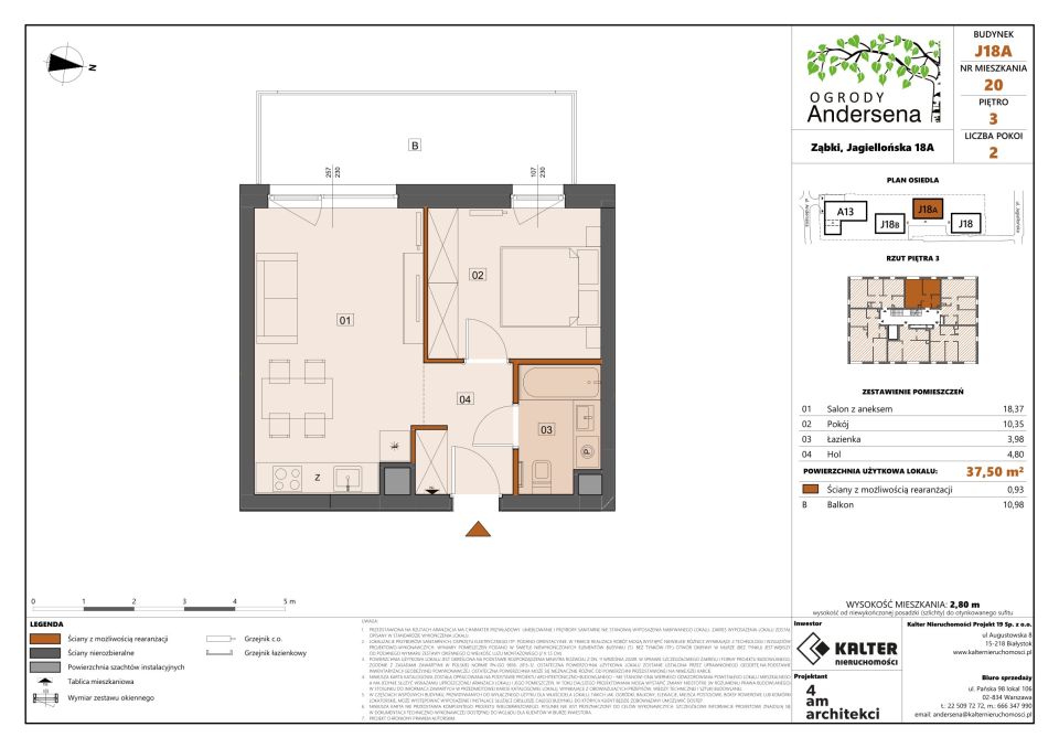
Budynek J18A - Piętro 3
Mieszkanie J18A.20
OGRODY ANDERSENA
Realizacja 60%
Dostępny
510 000 zł 13 600 zł / m2
Cena nie zmieniła się od: 11.09.2025
| Piętro | Piętro 3 | |
| Metraż | 37.50 m2 | |
| Liczba Pokoi | 2 | |
| Aneks/Kuchnia | Aneks kuchenny | |
| Wystawa okienna | Zachód | |
| Balkon | 10.98 m2 |
Cena za całość: 510 000 zł
Dodatkowe koszty i opcje:
- Koszt aktu notarialnego Obowiązkowy
- Koszty utrzymania nieruchomości do czasu powstania wspólnoty Obowiązkowy
- Opłaty do wspólnoty Obowiązkowy
- Wykończenie pod klucz Opcjonalny
Mieszkanie J18A.20 Wyślij zapytanie
FORMULARZ KONTAKTOWY