Home
Oferta
Lokale mieszkalne
Lokale usługowe
O firmie
Inwestycje zrealizowane
Deweloper
Kariera
Grupa Kalter
Dla klienta
Kredyty
Programy wykończeniowe
Aktualności
Kontakt
Strona główna
SŁONIMSKA RESIDENCE
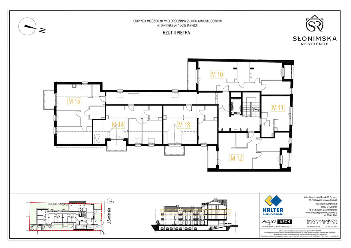
Piętro 2
SŁONIMSKA RESIDENCE
Piętro 2
Piętro 1
Plan budunku
Piętro 3
Wyszukiwarka
Pokoje
1
2
3
Powierzchnia
20-30 m²
40-50 m²
50-60 m²
60-70 m²
Status
Na sprzedaż
Rezerwacja
Sprzedane
Szukaj
Mieszkanie M10
SŁONIMSKA RESIDENCE
Białystok
Piętro 2
62.23 m
2
3
Rezerwacja
Sprawdź
Mieszkanie M11
SŁONIMSKA RESIDENCE
Białystok
Piętro 2
25.61 m
2
1
Rezerwacja
Sprawdź
Mieszkanie M12
SŁONIMSKA RESIDENCE
Białystok
Piętro 2
55.3 m
2
3
Rezerwacja
Sprawdź
Mieszkanie M13
SŁONIMSKA RESIDENCE
Białystok
Piętro 2
48,58 m
2
2
Dostępny
Sprawdź
Mieszkanie M14
SŁONIMSKA RESIDENCE
Białystok
Piętro 2
53.41 m
2
3
Rezerwacja
Sprawdź
Mieszkanie M15
SŁONIMSKA RESIDENCE
Białystok
Piętro 2
56.42 m
2
3
Rezerwacja
Sprawdź