OGRODY ANDERSENA
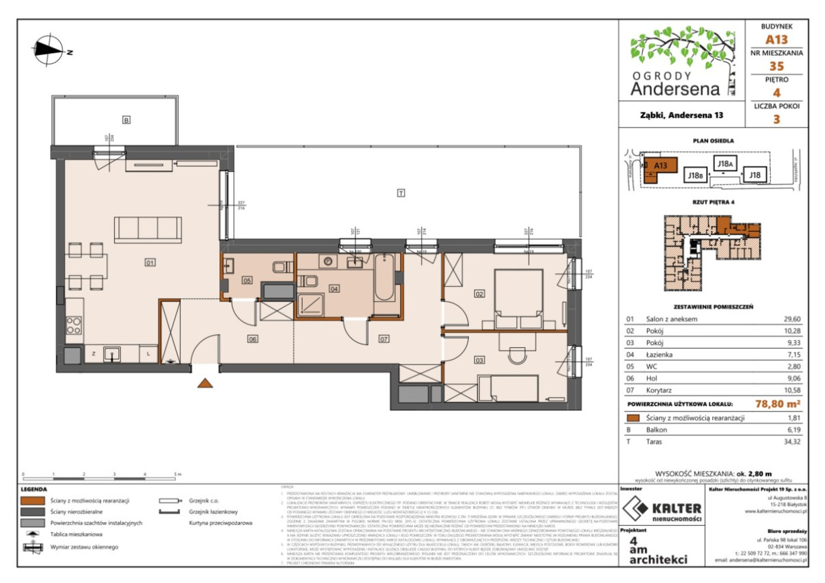
Budynek A13 - Piętro 4
Mieszkanie A13.35
OGRODY ANDERSENA
Realizacja 60%
Dostępny
959 000 zł 12 170.05 zł / m2
Cena nie zmieniła się od: 11.09.2025
| Piętro | Piętro 4 | |
| Metraż | 78.80 m2 | |
| Liczba Pokoi | 3 | |
| Aneks/Kuchnia | Aneks kuchenny | |
| Wystawa okienna | Północny zachód | |
| Taras | 34.32 m2 | |
| Balkon | 6.19 m2 |
Cena za całość: 959 000 zł
Dodatkowe koszty i opcje:
- Koszt aktu notarialnego Obowiązkowy
- Koszty utrzymania nieruchomości do czasu powstania wspólnoty Obowiązkowy
- Opłaty do wspólnoty Obowiązkowy
- Wykończenie pod klucz Opcjonalny
Mieszkanie A13.35 Wyślij zapytanie
FORMULARZ KONTAKTOWY